Autoverlad Lötschberg Lastwagen auf Autozug
Trasporto veicoli Lötschberg

Istruzioni per caricare veicoli di grandi dimensioni

Kandersteg–Goppenstein

Autocarri e camper devono essere pronti per il carico 15 minuti prima della partenza a Kandersteg o a Goppenstein. I minibus possono essere caricati fino a poco prima della partenza dei treni. Durante il trasporto i viaggiatori rimangono seduti nei relativi veicoli.

Si prega di notare che non è possibile caricare veicoli di grandi dimensioni sulla tratta Briga-Iselle.

Veicoli ammessi

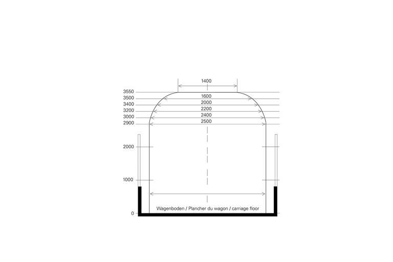
Non possono essere superati i seguenti limiti:

  • larghezza 2,5m, specchietti laterali inclusi
  • lunghezza 12m
  • altezza 3,55m
  • peso complessivo 28t
  • 22 posti a sedere

Autoverlad Lötschberg - Verladewagen Grosses Profil

Carrozza di carico grande

Profilo delle dimensioni
öffnen

Preparare il veicolo per il carico

Prima di condurre il veicolo sulla carrozza di carico

  • È vietato il trasporto di merci pericolose.
  • Piegare o rimuovere gli specchietti laterali sul lato del conducente.
  • Ruotare gli specchietti laterali del lato passeggero in modo da vedere solo il lato lungo del veicolo.
  • Le antenne laterali non devono sporgere sopra il tetto del veicolo e devono quindi essere ritratte.
  • Le antenne sul tetto devono essere piegate in piano e, se necessario, fissate o rimosse (pericolo di scossa elettrica con la linea di contatto).
  • Adottate queste precauzioni per tempo. Dovete essere pronti per il carico 15 minuti prima della partenza.

Arrivo e parcheggio del veicolo

A bordo del veicolo

  • Percorrere l’intero treno.
  • Sostare presso la prima carrozza a caricamento libero con copertura totale
  • Parcheggiare il veicolo al centro della carrozza di carico per distribuire il peso in modo uniforme.
  • Assicurate il vostro veicolo contro lo spostamento (posizione di parcheggio).
  • Ascoltate la radio o attivate TA per gli annunci automatici sul traffico (TA-Traffic Announcement).
  • Non lasciate mai il veicolo sul treno auto, tranne in caso di emergenza o se richiesto dal personale ferroviatio.

In caso di emergenza

  • Non toccare la linea di contatto.
  • Componete il numero 112.
  • Ascoltate la radio o attivate il TA per gli annunci automatici sul traffico (TA-Traffic Announcement).
  • Non abbandonate mai il veicolo sul treno auto, salvo in caso di emergenza o se richiesto dal personlae ferroviario.
  • In caso di emergenza, rifugiatevi sul marciapiede nella direzione indicata. Un corrimano vi aiuterà a camminare.

In caso di danno

Autoverlad-Verladen-1

Istruzioni per caricare le autovetture

Kandersteg–Goppenstein / Brig–Iselle / Kandersteg–Iselle
Motorrad

Istruzioni per caricare motocicli e biciclette

Kandersteg–Goppenstein / Brig–Iselle / Kandersteg–Iselle
Trasporto veicoli Lötschberg
Orario per veicoli di grandi dimensioni

Kandersteg–Goppenstein

Di più
Trasporto veicoli Lötschberg
Biglietti

per minibus fino a 22 posti, camper a partire da 5 t e autocarri da 3,5 t

Di più
Newsletter
PDF herunterladen
0 di 0 Documenti multimediali