Autoverlad Verladehinweise
Trasporto veicoli Lötschberg / Simplon

A cosa prestare attenzione al momento di caricare

Istruzioni per caricare l’autovettura senza problemi

Non siete mai saliti su un treno con la vostra auto? Oppure non utilizzate il treno auto da po’ di tempo? Guardate quanto è semplice nel nostro video esplicativo.

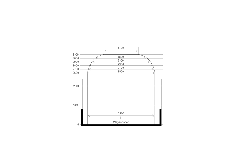
Veicoli ammessi

Non possono essere superati i seguenti limiti:

  • larghezza 2.5m, specchietti laterali inclusi
  • altezza 3.1m
  • peso complessivo 3.5t (camper fino a 5t)

 
Il vostro veicolo supera questi limiti?

Istruzioni per caricare veicoli di grandi dimensioni

Vietato caricare veicoli di grandi dimensioni al Sempione

Autoverlad Lötschberg & Simplon - Verladewagen Kleines Profil

Carrozza di carico – profilo piccole dimensioni

Profilo delle dimensioni

Aprire

Check-in e preparazione del veicolo

Preparare il veicolo per il carico

  • Assicuratevi che il vostro bagaglio sul tetto, comprese le biciclette, sia ben fissato. 
  • Cabriolet: chiudere la capote. 
  • Sintonizzate la radio o attivate gli annunci sul traffico (TA-Traffic Announcement)

Arrivo e parcheggio del veicolo

  • Avete bagagli (box da tetto, biciclette, ecc.) sul tetto dell'auto o una cabriolet con tetto in tela? Il personale ferroviario vi chiederà di caricarli su un vagone con tetto di protezione. 
  • Il vostro furgone è più alto di 2,5 m o ha un pianale di carico aperto? Il personale ferroviario vi chiederà di caricarlo su un vagone con tetto di protezione. 
  • Assicuratevi che tutte le quattro ruote siano posizionate sullo stesso carrello di carico. 
  • È vietato scendere dal veicolo sul treno auto, salvo in caso di emergenza o su espressa indicazione del personale ferroviatio. 
  • Bloccate il veicolo per impedirne il rotolamento (posizione di parcheggio).
  • Non avviate aggiornamenti del veicolo sul treno auto.
  • Seguite tutte le istruzioni del personale ferroviario. 

In caso di emergenza

  • Non toccare la linea di contatto.
  • Componete il numero 112.
  • Ascoltate la radio o attivate il TA per gli annunci automatici sul traffico (TA-Traffic Announcement).
  • Non abbandonate mai il veicolo sul treno auto, salvo in caso di emergenza o se richiesto dal personlae ferroviario.
  • In caso di emergenza, rifugiatevi sul marciapiede nella direzione indicata. Un corrimano vi aiuterà a camminare. 

 

In caso di danno Responsabilità civile

Autoverlad Lötschberg Lastwagen auf Autozug

Istruzioni per caricare veicoli di grandi dimensioni

Kandersteg–Goppenstein
Autoverlad Motorrad

Istruzioni per caricare motocicli e biciclette

Kandersteg–Goppenstein / Brig–Iselle / Kandersteg–Iselle
Autoverlad Lötschberg / Simplon
Biglietti e abbonamenti

L’offerta giusta per ogni esigenza.

Di più
Trasporto veicoli Lötschberg / Sempione
Orario

I vostri prossimi collegamenti

di più
Newsletter
PDF herunterladen
0 di 0 Documenti multimediali