Transport auto – camion au Lötschberg
Transport autos Lötschberg

Consignes de transport pour les véhicules spacieux

Kandersteg–Goppenstein

À Kandersteg ou Goppenstein, les camions et camping-cars doivent être prêts à embarquer 15 minutes avant le départ. Les minibus peuvent embarquer jusqu’à quelques minutes avant le départ des trains. Pendant le transport, les voyageurs restent dans le véhicule.

Veuillez noter qu'il n'est pas possible de charger des véhicules de grande taille sur la ligne Brigue-Iselle.

Véhicules admis

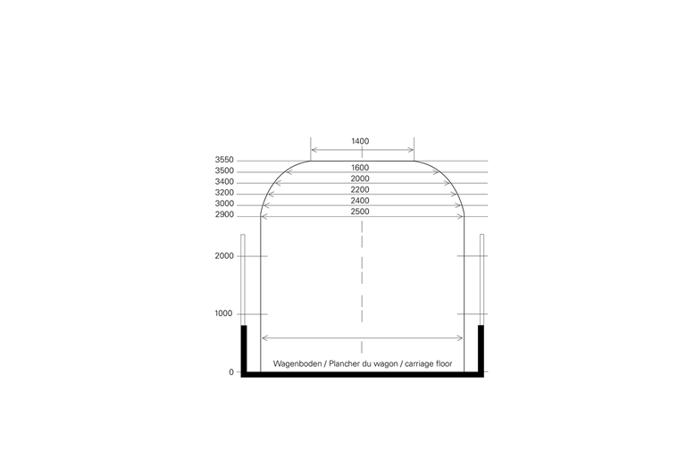
Les limites suivantes ne doivent pas être dépassées:

  1. Largeur: 2,5 m, miroir latéral inclus
  2. Longueur: 12 m
  3. Hauteur: 3,55 m
  4. Poids total: 28t
  5. 22 places assises
Autoverlad Lötschberg - Verladewagen Grosses Profil

Grande voiture

Dimensions
agrandir

Préparer votre véhicule au transport

Avant d’embarquer avec votre véhicule

  • Il est interdit de transporter des matières dangereuses.
  • Rabattez ou retirez le rétroviseur latéral côté conducteur.
  • Rabattez le rétroviseur latéral côté passager autant que possible, mais de façon à garder la visibilité sur toute la longueur du véhicule.
  • Les antennes latérales ne doivent pas dépasser la hauteur du toit du véhicule, donc il convient de les abaisser si nécessaire.
  • Pliez les antennes contre le toit et, si nécessaire, fixez ou retirez-les (risque de contact avec la ligne de contact).
  • Prenez toutes ces mesures suffisamment à l’avance. Vous devez être prêt(e) à embarquer 15 minutes avant le départ.

 

Embarquement et stationnement

Embarquement

  • Avancez jusqu’au fond du train.
  • Arrêtez-vous dans la dernière voiture libre entièrement couverte.
  • Stationnez votre véhicule au milieu de la voiture afin de répartir le poids de manière uniforme.
  • Assurez-vous que votre véhicule ne puisse pas rouler (position de stationnement).
  • Écoutez la radio ou activez TA pour les annonces routières automatiques (TA-Traffic Announcement).
  • Ne quittez jamais votre véhicule sur le train-auto, sauf en cas d'urgence ou si le personnel ferroviaire vous y invite.

En cas d’urgence

  • Ne touchez pas la caténaire.
  • Composez le 112.
  • Écoutez la radio ou activez la fonction TA pour les annonces automatiques sur le traffic (TA-Traffic Announcement).
  • Ne quittez jamais le véhicule sur le train-auto, sauf en cas d'urgence ou si le personnel ferroviaire vous y invite. 
  • En cas d'urgence, réfugiez-vous sur le chemin latéral dans la direction indiquée. Une main courante vous aide à marcher.

En cas de dommage

Autoverlad-Verladen-1

Consignes de transport pour les voitures

Kandersteg–Goppenstein / Brig–Iselle / Kandersteg–Iselle
Motorrad

Consignes de transport pour les motos et vélos

Kandersteg–Goppenstein / Brig–Iselle / Kandersteg–Iselle
Transport autos Lötschberg
Horaire

Liaisons horaires pour les véhicules spacieux entre Kandersteg et Goppenstein.

Plus
Transport autos Lötschberg
Billets

pour les minibus de 22 places maximum, les camping-cars de plus de 5t et les camions de plus de 3,5t

Plus
Newsletter
PDF herunterladen
0 de 0 Fichiers de médias